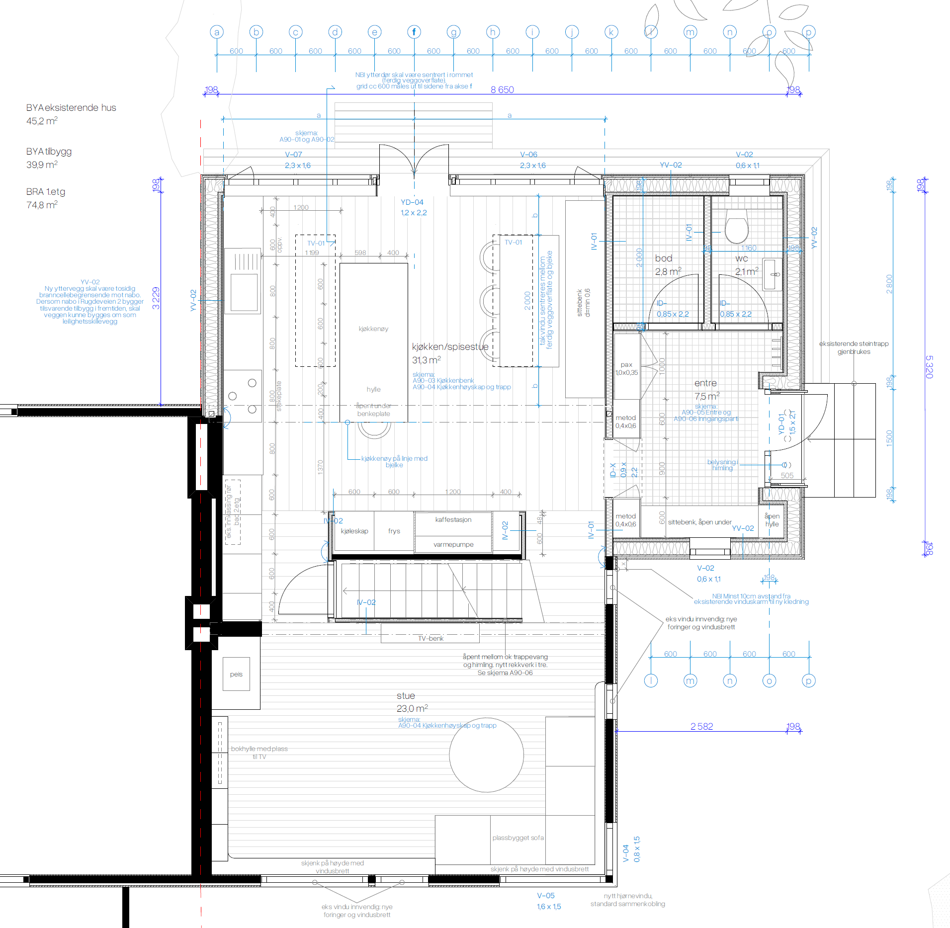
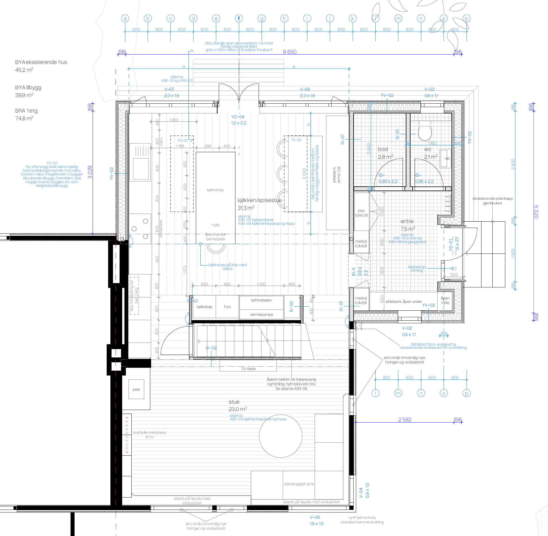
I Asker har vi tegnet tilbygg til en vertikaldelt tomannsbolig fra 50-tallet. Huset ligger på toppen av en skrånende, sørvendt og frodig tomt, med store og varierte områder for lek, opphold, dyrking og frukttrær. Sentrale tema har vært å oppgradere huset uten å tilføre mer areal enn nødvendig, og å bygge til uten å vesentlig endre uttrykket til det opprinnelige huset. Det foreslåtte tilbygget er en utvidelse av eksisterende kjøkken mot nord, og ny inngang mot øst. Tilbygget er plassert mot baksiden av hovedhuset, med saltak med tilsvarende vinkel som hovedhuset. Det er utformet for å underordne seg hovedhuset og bevare inntrykket av tomannsboligens opprinnelige hovedform. Taket har takutstikk som både beskytter dører og vindu mot vær og vind, gir tilbygget en egen personlighet og bryter ned skalaen mot hagen.

Utsyn fra den gamle delen av huset gjennom det nye tilbygget ut i hagen.

Ny planløsning

Nytt kjøkken i tilbygget

Fasadetegning av tilbygget mot hagen i nord

Forrige
Forrige

Enebolig på Vøyenenga

Neste
Neste

Verdens beste nabolag!