
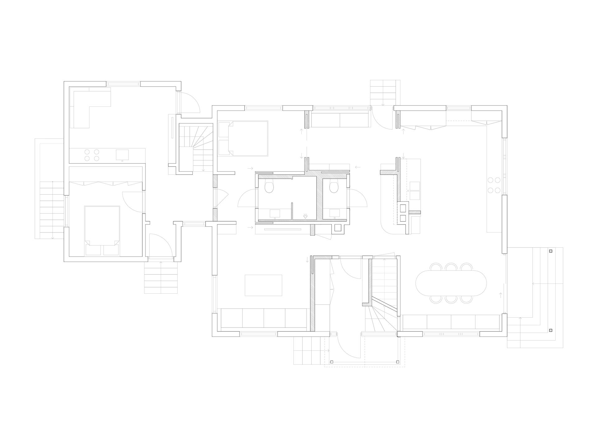
Prosjektet er en ombygging av en tremannsbolig fra 1949. Målet har vært en sosial førsteetasje med rom for å være sammen, men også soner for å trekke seg tilbake. Soverommene ligger i andre etasje, med nytt bad og kontor med veranda mot vest. Mindre fasadeendringer trekker lyset inn i huset, uten at husets karakter fra 1949 endres. Den nye trappen i vest forbinder førsteetasjen bedre med hagen med sol på dag- og ettermiddagstid, mens utgangsdøren mot sør-øst gir en liten plass til kaffekoppen i morgensola.
Førsteetasje med utleiedel
Ny og eksisterende planløsning i første etasje
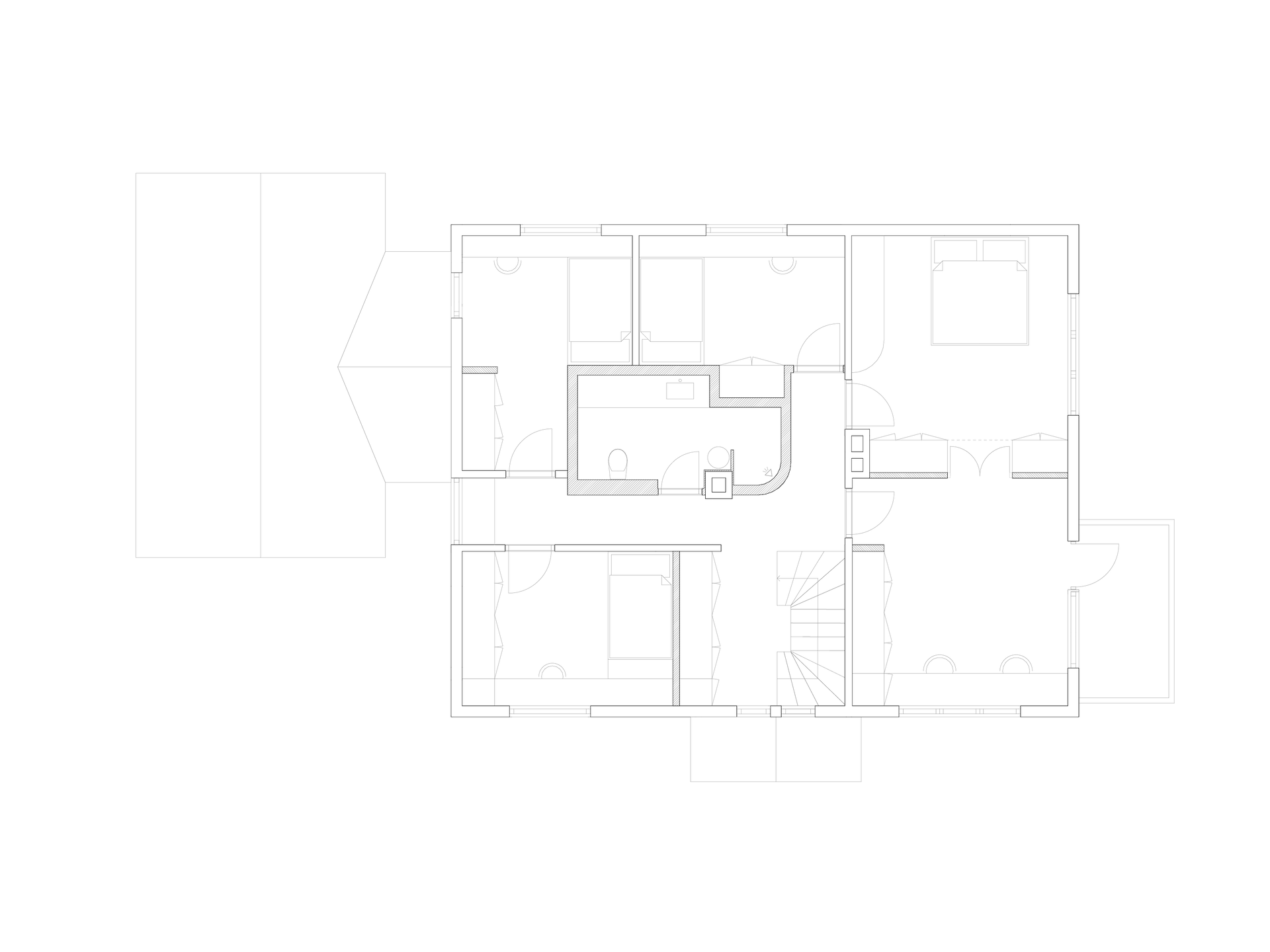
Ny og eksisterende planløsning i andre etasje
Mindre fasadeendringer trekker lyset inn i huset og gir bedre kontakt med hagen, uten at husets karakter fra 1949 endres.